Introduction
The Old Presbyterian Meeting House1 in Alexandria, Virginia, holds a rich history within its 18th-century burial ground. This sacred space serves as the final resting place for many notable figures who shaped the early days of the town and played significant roles in the nation’s founding. From the earliest grave dating back to 1761 to the establishment of a new burial site in 1809, the Meeting House burial ground offers a fascinating glimpse into the lives and legacies of Alexandria’s early Presbyterians.
The Early Days
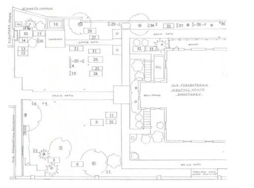
The churchyard burial ground, located north and west of the Presbyterian Meeting House, was the primary burial site for Alexandria’s Presbyterians from the town’s founding until 1809. The oldest grave in the burial ground belongs to Sarah Fairfax Carlyle, who died in 1761, predating the establishment of the formal Presbyterian congregation in 1772 and the completion of the original meeting house in 1775.
Shift to a New Site
In 1809, the Alexandria Common Council passed an ordinance prohibiting further burials within the city limits. In response, the Presbyterian congregation established a new burial ground, the Presbyterian Cemetery on Hamilton Lane, which remains in use today.
Notable Figures and Resting Places
Church records reveal that approximately 396 individuals from Alexandria’s colonial and early national periods were laid to rest in the Meeting House burial ground during its roughly fifty years of use. Many of these graves are unmarked, but among the interred are members of prominent founding families such as the Alexanders, Carlyles, and Ramsays, as well as Rev. William Thom, the congregation’s first minister, and his mother, Mary Thom.

Honoring Heroes
The burial ground is the final resting place for veterans of the French and Indian War and the American Revolutionary War. One of the most notable monuments is the Tomb of an Unknown Soldier of the American Revolution, dedicated to an unidentified patriot whose remains were discovered during the construction of St. Mary’s Catholic Church in 1826. Other significant figures include Dr. Robert Creighton, who fought in the French and Indian War, and Dr. James Craik, a close friend of George Washington and one of the attending physicians at his deathbed.
Challenges and Preservation
Over time, the expansion and reconstruction of the Meeting House during the 1830s and 1840s led to the loss or concealment of some burial sites. The relocation of the northern property line also necessitated the removal of certain graves, with the final boundary marked by a brick wall erected in 1932. Today, approximately 40 gravestones remain visible, a testament to the many lives commemorated in this historic space.
The Tomb of the Unknown Soldier of the American Revolution
In 1929, the National Society of the Children of the American Revolution erected the Tomb of the Unknown Soldier of the American Revolution within the Old Presbyterian Meeting House’s 18th-century burial ground. This monument pays tribute to an unidentified patriot whose remains were discovered in 1826 during the construction of St. Mary’s Catholic Church, now known as the Basilica of Saint Mary.
The Basilica of Saint Mary, situated adjacent to the Meeting House, provides valuable insights into the historical context of the era. Its proximity to the burial ground and the discovery of the unknown soldier’s remains underscore the interconnected nature of Alexandria’s early history and the sacrifices made by those who fought for American independence. For additional information about The Basilica of Saint Mary, you can explore this [link].

| Here lies a soldier of the revolution whose identity is known but to God He was an idealism that recognized a supreme being that planted religious liberty on our shores that overthrew despotism that established a peoples government that wrote a constitution setting metes and bounds of delegated authority that fixed a standard of value upon men above gold and lifted high the touch of civil liberty along the pathway of mankind. In ourselves his soul exists as part of ours his memory’s mansion. |

In the early 20th century—likely around 1930—Eleanor Washington Howard, a descendant of George Washington and the last child born at Mount Vernon in 1856, visited the tomb. A rare postcard shows her standing quietly beside the grave, offering a poignant visual bridge between the Founding Era and modern remembrance. The back of the postcard identifies it as published by Shenandoah Publishing House, Inc. of Strasburg, Virginia, suggesting it was part of a regional series of commemorative or tourist images from the period. Eleanor lived until 1937 and was buried at Zion Episcopal Churchyard in Charles Town, West Virginia.
A separate postcard—featuring the piazza at Mount Vernon and signed by Eleanor S. Washington Howard—is preserved in the collections of the Mount Vernon Ladies’ Association Archives and dates to approximately the same period. The image of her at the tomb may have originated from a similar regional printing series.
Mary Gregory Crauford Powell
Mary Gregory Crauford Powell (1847-1928) left an indelible mark on the history of the Old Presbyterian Meeting House, despite not being buried in its 18th-century burial ground. As a devoted member of the Mount Vernon Chapter of the Daughters of the American Revolution (DAR), she played a crucial role in establishing a memorial at the Tomb of the Unknown Soldier from the American Revolutionary War, located in the burial ground.

Powell’s dedication to preserving history and honoring those who came before her extended beyond the Old Presbyterian Meeting House. She was laid to rest in the Presbyterian Cemetery, situated one mile west of the Meeting House, near her father, William Gregory III. This separate burial location serves as a testament to her far-reaching impact and the legacy she left behind.
Read more about the Presbyterian Cemetery at this [link].
Discovering the Stories of the Past
The Old Presbyterian Meeting House burial ground is home to numerous fascinating individuals whose lives and contributions have shaped the history of Alexandria and the nation. From Sarah Fairfax Carlyle’s sober tombstone to Dr. James Craik’s impressive legacy, each grave holds a unique story waiting to be discovered. As new research uncovers additional details about those laid to rest here, our understanding of this sacred space and its significance continues to grow.
To read more about the details of the burials in the 18th Century Burial Ground of the Meeting House, access the brochure [here].
Lives Remembered: Notable Burials in the Old Presbyterian Meeting House Burial Ground
Richard Arell (1719-1796) Donated Land for the 18th Century Presbyterian Meeting House Burial Ground.
Richard Arell, originally from Pennsylvania, became a prominent figure in Alexandria, Virginia’s early history, settling there by 1768. He ran a successful tavern on King Street, a popular spot for notable individuals, including George Washington, who documented his visits starting from 1768, even before the tavern received its official license in the early 1770s. The tavern welcomed distinguished guests like John Carlyle, George Mason, and William Ramsay. Phillip Alexander, who is connected to Alexandria’s founding family, significantly supported Arell’s business endeavors.
As T. Michael Miller, a respected Research Historian at the Alexandria Library, noted, a critical meeting occurred in Arell’s Tavern on July 18, 1774. Led by George Washington, a committee of Fairfax County residents convened there to draft the Fairfax Resolves. These resolutions, largely authored by George Mason, expressed disapproval of the British Parliament’s actions against Boston following the Tea Party. The Fairfax Resolves influenced the Virginia Declaration of Rights and the United States Constitution’s Bill of Rights. The tavern, an integral part of this history, ceased operations by 1811.
Arell’s influence extended beyond his business; he owned significant real estate, including properties on Duke and Royal Streets, and his family was deeply integrated into the community, evidenced by his wife’s attendance at George Washington’s final birthday celebration in 1799.
The Arell legacy was furthered through his children, particularly his son David, a Revolutionary War officer who later became Alexandria’s influential lawyer, councilman, and mayor. Both father and son were members of the esteemed Alexandria-Washington Masonic Lodge N. 22. Richard’s daughter, Christiana “Kitty” Arell, also played a role in the town’s social circles.
Richard Arell’s enduring impact includes his and his wife’s 1773 land donation for the Presbyterian Meeting House, on parts of which the town’s Presbyterian burial ground was established. Although the exact location of Arell’s grave within this historic burial ground has been obscured by time and urban development, his and his descendants’ societal contributions and philanthropy remain a testament to his lasting influence on Alexandria.
Judith Bogue
Died of dropsy (heart failure) at 40.
| To the memory of JUDITH BOGUE, spoufe of JOHN BOGUE of Alexandria who died 3rd September 1799, Aged 40 Years. Her turn induftrious and her maternal care; enhanced to me her worth, and to the four fhe bore. In all her dealings just & in her friendship firm; She died in peace & hope unaw’d by death tho grim. Take warning of your end & live not as the throng Knowing that time is short, eternity how long; Our friend has baid [sic] the debt we owe & all muft pay. Peace guard the hallow’d place where now her afhes lay. M.H. Memento Mori. |
John Carlyle (1720- 1780) Founding Trustee and first Overseer of Alexandria
Born in 1720, John Carlyle was the second son of a prominent British family with strong Scottish connections. He began his career as an apprentice with an English merchant firm, and in 1741, he ventured to Virginia as a representative for William Hicks.

Carlyle amassed substantial land holdings in Virginia, including three plantations and an iron foundry in Shenandoah. He engaged in import and export activities with England and the West Indies, solidifying his reputation as a respected merchant in Alexandria.
In 1747, he entered matrimony with Sarah Fairfax, a member of the esteemed Fairfax family. Sarah Carlyle, laid to rest beside her husband in the Meeting House burial ground, bore seven children. Among them, Sarah Fairfax Carlyle, the fifth child, was the first to survive infancy. Tragically, Sarah passed away on January 22, 1761, shortly after giving birth to their seventh child, Ann. Her gravestone is among the oldest in the Meeting House burial ground (see picture above).
Subsequently, on October 22, John wedded Sybil West, the daughter of Hugh West, a prominent figure in Alexandria who established the village of West. Located west of Alexandria near Hooff’s run along Duke Street, this village eventually evolved into the present-day Carlyle neighborhood and the United States Patent and Trademark Offices site. Sybil and John were blessed with four children throughout their decade-long marriage, yet only George William survived. Following Sybil’s demise in 1769, John Carlyle chose not to remarry.
In 1775, Carlyle’s daughter Ann joined in matrimony with Henry Whiting but tragically died during childbirth in 1778.
John Carlyle’s name was among the notable signatories of the Fairfax Resolves, adopted on July 18, 1774. These resolutions, primarily authored by George Mason at George Washington’s urging, rejected the British Parliament’s authority over the American Colonies.
Additionally, Carlyle played pivotal roles in the community, being a founding member of the Sun Fire Company in 1777, overseeing the construction of the original Meeting House sanctuary at 321 S. Fairfax Street, acting as a commissary for the Virginia regiment in the French and Indian War, serving as a trustee of Alexandria, and functioning as a Justice of Fairfax County during the Revolutionary War. Notably, he was also a slave owner, owning 67 slaves at the time of his passing.

Carlyle erected a stately Georgian-style stone mansion in 1753, which still stands at its original location, 121 N. Fairfax Street. In April 1755, this mansion served as the headquarters for General Edward Braddock for three weeks. During this period, Braddock meticulously strategized his mission to expel French forces from Fort Duquesne, situated at the juncture of the Allegheny and Monongahela Rivers in what is now Pittsburgh, Pennsylvania.
While occupying the mansion, Braddock assembled a conference of five Royal Governors. The focus of their deliberations was the financing of the impending campaign against the French. The outcome of their discussions led to the decision to impose taxes on the colonists to fund the war effort. This consequential choice ultimately paved the way for the emergence of the American Revolutionary War.
Tragically, Braddock met his end due to mortal wounds sustained at the Battle of the Monongahela on July 9, 1755. Amidst this engagement, George Washington, who served as Braddock’s civilian-military aide-de-camp, rallied the defeated British and American troops under his command, guiding them to safety. Of the 1,459 men comprising Braddock’s expedition, 977 were either wounded or killed, including sixty-three officers. Washington’s heroic actions in preserving the remnants of the army garnered him acclaim and marked the initial steps toward his eventual prominence. This trajectory culminated in his appointment as the Commander-in-Chief of the American Revolutionary Army by the Continental Congress in 1775.

In 1780, John Carlyle passed away, bequeathing Carlyle House to his young son, George William, who was only fourteen. Tragically, George William’s life was cut short at the age of fifteen when he lost his life during the Battle of Eutaw Springs in South Carolina on September 8, 1781, amidst the turmoil of the Revolutionary War.
| Here lies the body of Major JOHN CARLYLE son of DR. WILLIAM and RACHEL MURRY CARLYLE born in Dumfriesshire, Scotland, 1720. died in Alexandria, Virginia 1780. One of the first trustees of Alex andria 1748, appointed Commissary of the Virginia Forces, 175 Erected by the Alexandria Chamber of Commerce |
Sarah Fairfax Carlyle (December 31, 1730 – January 22, 1761) The Oldest Gravestone in the Cemetery
Sarah “Sally” Fairfax Carlyle, born around 1730 in Salem, Massachusetts, was a notable figure in colonial American society. She was the daughter of William Fairfax, a significant figure in Virginia’s history, serving as the collector of His Majesty’s customs in South Patowmack and president of the Honourable Council in Virginia, and Sarah (Walker) Fairfax. Her family was deeply entrenched in the social and political dynamics of the time, with her cousin being Thomas Fairfax, 6th Lord Fairfax of Cameron, a member of one of Virginia’s most influential families.
In 1747, Sarah married John Carlyle, a prominent merchant in Alexandria, Virginia, in Fairfax County. Their union brought forth several children, including Sarah (Carlyle) Herbert and Anne Fairfax (Carlyle) Whiting. Tragically, five of their children—Rachel, Ann, William, George Fairfax, and Hannah—predeceased Sarah.
Sarah Carlyle’s life was relatively short but impactful. She passed away on January 22, 1761, in Alexandria, Virginia, at the age of about 31, due to complications during the birth of her seventh child. Her final resting place is in the Meeting House churchyard in Alexandria. A touching epitaph on her tombstone, documented by Reverend Timothy Alden in 1814, describes her as a “dutiful child, loving wife, affectionate parent, indulgent mistress, faithful friend, [and] sincere Christian.” This epitaph is a testament to her character and the roles she embodied throughout her life.
Despite her connections and the significance of her family, Sarah Carlyle’s broader historical recognition seemed to diminish over time. By the 1920s, there were no notable mentions or memorials of her, suggesting that while her immediate impact was considerable, her legacy in the larger scope of history had faded. Sarah Carlyle’s story reflects the societal norms and challenges faced by women in 18th-century colonial America, offering a unique perspective on the era’s social fabric.
| To the memory of Mrs. Sarah Carlyle Wife of Coll John Carlyle, Merch in Alexandria and Daughter of the Hon W Fairfax, Esq. Coll of his Majesty’s Customs on South Potomack President of the Hon Council of Virginia Who died in Child-bed of her seventh Child the 22 of Jan 1761 Aged 30 Years 22 Days She was amiable thru Life as a Dutiful Child Loving wife Affectionate Parent Indulgent Mistrefs Faithful Friend Sincere Christian and is thence justly lamented by All who knew her Our Life is short but to extend that span to vast eternity in virtue’s work —— Nigh her lie Five of her Children Rachel Ann William George-Fairfax and Hanah |
Dr. James Craik (1727 – 1814) Surgeon General in the Continental Army; Close Friend of Washington

Dr. James Craik, a Scottish-born physician educated at the University of Edinburgh, served as a surgeon in the British Army before settling in the American colonies in 1751. His medical skills and leadership became apparent during the French and Indian War, particularly during Braddock’s expedition to Fort Duquesne. Craik’s close association with George Washington began around this time and would continue throughout his life.
In the Revolutionary War, Washington enlisted Craik in the Continental Army, where he served as the Chief Physician and Surgeon. His medical contributions were vital, especially during the siege of Yorktown. Beyond his military duties, Craik was active in his community, helping to establish institutions such as the Society of the Cincinnati in Maryland and the Bank of Alexandria.
Craik’s residences, including the Vaucluse estate and the “Dr. Craik House” in Alexandria, as well as the LaGrange plantation, reflect his prominence. His personal life brought him close to historical events and figures, including attending to Washington on his deathbed. Washington’s will acknowledged their deep bond through personal bequests.
Craik’s life was not without its controversies, such as his position on slavery, which mirrors the complexities of 18th-century societal norms. Nevertheless, his medical service was highly regarded. Dr. Craik died in 1814 and was buried in the Meeting House churchyard in Alexandria, leaving a legacy significant to the early history of the United States.
To read more about Dr. Craik, please visit this blog [Dr. James Craik: George Washington’s Lifelong Friend and Physician | A Tale of Commitment and Friendship]
| In Memory of JAMES CRAIK Chief Physician and Surgeon of the Continental Army Born ….. 1727 Near Dumfries, Scotland Died February 4, 1814 Near Alexandria, Virginia |
Mary Ann Steiner Faw (d. 1805) – Wife of Constitutional Signer Abraham Faw
Mary Ann Steiner Faw was the second wife of Abraham Faw, a Swiss-born immigrant who became a prominent merchant, Revolutionary War supporter, Maryland legislator, and later a civic leader in Alexandria. During the American Revolution, Abraham Faw supplied cloth for military uniforms, helped construct facilities to house British prisoners, served on Frederick’s Committee of Observation, and later signed the U.S. Constitution as a delegate to Maryland’s Ratification Convention.
Mary Ann and Abraham had three children together. She died in January 1805 and was buried on January 20 in the burial ground of the Old Presbyterian Meeting House. Research indicates that she died alone and likely took her own life—an event that would have carried significant social and religious stigma in the early republic. Her gravesite within the burial ground is today unknown.
After her death, Abraham Faw remarried in 1808 to Sarah Moody. He later served Alexandria as a justice of the peace, Hustings Court justice, coroner, and alderman. Abraham and his third wife are buried in the Trinity United Methodist Church Cemetery within the Wilkes Street Cemetery Complex.
Mary Ann’s story reminds us that this burial ground preserves not only the memory of civic leaders and signers of the Constitution, but also the quieter, more fragile human stories woven into Alexandria’s early history.
Lara Ann Gilman (Died August 18, 1807)
| LAURA ANN GILMAN Died August 18th, 1807 Aged Nine Months & 18 Days |
Dr. Robert Creighton: A Life from Scotland to the Americas – Military Physician and Longtime Resident of Jamaica
Dr. Robert Creighton (1734–1801), also known as Robert Crighton, was a notable figure in the 18th century, with a life marked by significant contributions in both military and medical fields. Born in Ayrshire, in the West Lowlands of Scotland, Creighton’s journey led him to become an integral part of history, particularly in the context of General Braddock’s ill-fated expedition during the French and Indian War.
Creighton emigrated from Scotland to the Americas, a move that would define his professional and personal life. His medical skills found a crucial role in the military, as he served as a medical officer with General Edward Braddock’s forces. This period was during the French and Indian War, a theater of the worldwide Seven Years’ War, a pivotal conflict involving major European powers.
General Braddock’s expedition, aimed at capturing Fort Duquesne, is historically significant due to its disastrous outcome. The British forces, including Dr. Creighton, faced a severe defeat in 1755 near what is now Pittsburgh, Pennsylvania. This event is remembered as a significant military blunder and a turning point in the war, impacting the British strategy in North America.
Following his military service, Creighton established himself as a physician with an office on Cameron Street, likely in Alexandria, Virginia. This transition from the battlefield to civilian medical practice highlights his versatility and commitment to his profession.
Creighton’s life took another turn when he moved to Jamaica, where he resided for 40 years. His time in Jamaica is sparse, but it’s clear that this period was significant in his life, likely involving extensive medical practice and community engagement.
In the latter part of his life, Creighton returned to America due to declining health caused by consumption, now known as tuberculosis. He settled in Alexandria, where he sought relief from his illness. Unfortunately, his health continued to deteriorate, and he passed away on the 18th of November, 1801, at the age of 67.
Dr. Creighton was buried in the Meeting House churchyard on the 20th of November, 1801. His gravestone bears an inscription that commemorates his life and service and reflects the respect and mourning of his widow and community. This inscription, recorded in the early 20th century, is a testament to his life’s journey from Scotland to the Americas, his professional dedication, and his impact on those around him.
In summary, Dr. Robert Creighton’s life was marked by his service as a medical officer in General Braddock’s ill-fated expedition, a long residency in Jamaica, and his final years in Alexandria, where he ultimately succumbed to tuberculosis. His life story encompasses professional dedication, adaptability in various environments, and a legacy that remains in the historical records of his time.
| Sacred to the memory of ROBERT CRIGHTON, Esq. M.D. A Native of Scotland He served Professionally in Braddock’s Army and after the defeat of that ill-fated Officer went to the Island of Jamaica where he resided for Forty Years and until declining health induced him to come to America in search of relief. It was in Alexandria, after a painful illness, Death arrested him on the 18th Day of November A.D. 1801 in the sixty seventh Year of his Age. Much regretted by his friends & Acquaintances. This monument whilst it expresses the attachment of his Widow reminds those by whom it may be observed. He was appointed unto Man once to die/and after death the Judgment. |
Mary Halloday (c.1729-1786)
Mary Halloday was believed to have been born in County Antrim, Northern Ireland, as the daughter of Charles and Rosanna Penny McAlister. She lived a life that spanned 57 years before being laid to rest in the Meeting House churchyard.
| In Memory of Mary HALLODAY, wife of JAMES who died the fecond of July 1786, Aged 57 years Fhe was a loving wife, a kind mother, mistrefs and neighbor |
Capt. John Harper (1728 – 1804) Built Captain’s Row and Gentry Row on Prince Street
Captain John Harper Sr. (1728-1804) was a prominent figure in the history of Alexandria, Virginia, and a notable sea captain. Born in Philadelphia to Robert and Margaret Harper, he left his birthplace at the outbreak of the Revolutionary War and joined the Quaker Meeting House. Harper married Sarah Wells of Pennsylvania, with whom he had 20 children, and later married Mary Reynolds of Winchester, Virginia, fathering another nine children.
Harper’s career was multifaceted. Initially, he was a mariner who managed a schooner in the West Indies trade. He later became a merchant, partnering with William Hartshorne, another Quaker, at Harper’s Wharf, located at the foot of Prince Street. His business acumen led to the development of Prince Street into Captain’s Row and Gentry Row. Despite his success, the location of his final resting place remains unknown.
A conscientious objector and not a military man, Harper still played a significant role during the Revolutionary War era. In 1775, he procured ammunition and other military supplies for George Washington’s independent companies in Virginia. He was a councilman and a member of the Common Council in Alexandria from its inception in 1780, demonstrating his involvement in local governance.
Harper was also a committed social advocate. He signed the 1792 petition to the Governor seeking the freedom of a slave named Will, who had been sentenced to death. He also signed the 1785 Memorial and Remonstrance and the 1787 petition to establish Overseers of the Poor.
In addition to his social and business pursuits, Harper was an active community member. He was a member of the Sun Fire Company from 1777, a charter member of the Alexandria Library Company in 1794, and a member of the Masonic Lodge. He was listed on the burial ground Revolutionary War Patriot plaque and buried in the Meeting House churchyard, with his funeral conducted by Rev. Muir on May 7, 1804.
Harper’s life was one of significant influence and contribution to early American society, particularly in Alexandria, Virginia, where his legacy as a merchant, advocate, and community member remains notable.

Agnes Hepburn (1727-1814)
The Legacy of Agnes and William Hepburn
Agnes Hepburn lived a fulfilling life and passed away at 87 due to old age. Her life was intertwined with her husband, William Hepburn, whose legacy is vast and intriguing.
William Hepburn: The Merchant and Community Leader
William Hepburn (1730-1817) was a prominent merchant, collaborating in business with his son-in-law, John Dundas. Their business was prominently located on King Street. A significant chapter in his life unfolded in 1777 when William and another Presbyterian, Wales, were wrongfully arrested and accused of being Loyalists who sided with the British.
Beyond business, Hepburn was deeply rooted in his community. He attended a congregational meeting in March 1817 but chose not to become a member of the Second. His stature was such that he even visited George Washington at his residence, Mount Vernon, in April 1775.
Entrepreneurial Ventures
On the entrepreneurial front, Hepburn, in collaboration with Dundas, built a mill near Backlick and Indian Runs, approximately six miles from Alexandria, in 1788. He also had ownership and managed another mill in Northern Virginia.
His ventures were wider than milling. Hepburn owned a rope walk, a place that even George Washington frequented. His influence was further solidified when he signed the 1785 Memorial and Remonstrance Against Assessments.
Public Service and Personal Life
Hepburn’s commitment to his community was evident as a councilman for the City of Alexandria between 1783-84. He was also an active member of the Sun Fire Company from 1777.
After his demise, there remains a mystery surrounding his final resting place. It’s unclear if he was buried next to his beloved wife, Agnes, or in the Presbyterian Cemetery.
A Complex Personal Life
William’s life had its complexities. He had a relationship with an enslaved woman named Esther David, often called Esther Hepburn. Esther, an African American Black woman, was initially under William’s ownership, having been purchased from Benjamin Dulany. She was later sold to Hannah Jackson, who freed Moses, Letty, and Juliana. Together, William and Esther had four children.
Moses Hepburn: A Legacy in His Own Right
One of the children William had with Esther was Moses. Moses carved out his legacy, becoming a trustee of the Methodist Church’s Davis Chapel, now known as the Roberts Memorial United Methodist Church, the oldest Black Methodist Church in Alexandria and an active congregation to this day. Recognized as a “prominent free black business leader,” Moses voiced concerns about the retrocession’s adverse effects on Virginia’s Black community. Despite not having voting rights, he remained politically active.
For his education, Moses traveled to Philadelphia. He later became known as Rev. Moses Hepburn and settled in West Chester, Pennsylvania. His achievements were many, including being recognized as the wealthiest African American in Alexandria. Eventually, he moved to Pennsylvania, where he raised his five children.
| Erected in memory of AGNES the late wife of WILLIAM HEPBURN who departed this life 7th June 1814. She was distinguished for simplicity of manner and unfeigned piety. Having lived in the fear of the God she died in peace, in her eighty seventh year. |
William Hunter (1731 – 1792) Mayor of Alexandria; Founder of the St. Andrew’s Society
William Hunter, born in Gaston, Scotland on January 20, 1731, made his journey to the Colony of Virginia. In Alexandria, he established himself as a merchant, building trade connections with London and Liverpool. He served as mayor of Alexandria twice (1787-1788), contributing to the town’s governance. In 1760, he founded the St. Andrew’s Society, creating lasting social connections in the community.
Hunter’s dedication to Alexandria extended through multiple roles. He served as an Elder in the Presbyterian Church and was an active member of the Alexandria-Washington Masonic Lodge. His home at 501 Duke Street became a significant part of the town’s landscape. When Hunter passed away on November 19, 1792, at age 61, the St. Andrew’s Society honored his contributions by erecting a monument in his memory.
| Relieve the Distressed Nemo me impune lacessit Sacred to the Memory of WILLIAM HUNTER, Jun Born Gafton, Scotland. January 20, 1731 The Characteriftics of his life were Unbounded Benevolence and Friendship. He Died in Alexandria November 19, 17792 Beloved Efteemend and Lamented The ST. ANDREWS SOCIETY OF ALEXANDRIA Whofe Founder he was an Among whom he Rifided Until removed by Death Erect this Monument Af a Tribute of Gratitude and Refpect |
Margaret Janney (Died February 9, 1810)
She died of bilious cholic (gallstones) at the age of 49 years. Abel Janney (1755-20 September 1816) was a prominent shipping merchant from Pennsylvania who later settled in Alexandria. He married Margaret Wilkes (1764-14 May 1810), the daughter of Samuel and Rebecca Wilkes. The couple was blessed with nine children: Elizabeth, Samuel, who tragically died at sea; Cosmelia, Rebecca, Cynthia, and Maria (who lived for only a year); another daughter named Maria, Nancy; and a son named Abel who passed away in his early years. Despite the May 1, 1809 stoppage order, an exception was made to allow Margaret Janney to be buried in the Meeting House burial ground, where he is buried. His burial location is not known. Abel Janney’s legacy is remembered through his descendants and his contributions to the shipping industry.
| In memory of MARGARET JANNEY wife of ABLE JANNEY who departed this life February the 9th, 1810 |
Dr. James Muir (1757 – 1820), Third minister of the Meeting House; Chaplain of Washington’s Masonic Lodge
In 1788, the congregation extended an invitation to Reverend James Muir, D.D., who dutifully served until 1820. Much of the Meeting House’s initial church records can be attributed to Dr. Muir’s meticulous documentation.
Additionally, Muir held the position of Chaplain at Washington’s Masonic Lodge and was entrusted with leading prayers during the ceremonial laying of the South Cornerstone of the District of Columbia on April 15, 1791. It’s worth noting that while George Washington did not attend the event, he had visited the site a month earlier.

Led Local Funeral Services for George Washington
On Wednesday, December 18, just four days following his passing, the remains of George Washington were laid to rest at Mount Vernon, where his body found its final resting place. Many mourners from Alexandria embarked on a journey early in the morning, spanning over nine miles, to reach Mount Vernon. The interment ceremony, arranged by Alexandria’s Masonic Lodge No. 22, occurred from three o’clock until sunset.
The Meeting House also played a pivotal role as the venue for public funeral services held in honor of Washington. If you’d like to learn more about these commemorative services, you can explore a dedicated blog post as this [link].
Member of a Peace Delegation that attempted to surrender to the British on August 25, 1814.
Muir found himself at the forefront of a “peace” delegation with the audacious task of offering the surrender of Alexandria to British Admiral Cockburn on August 25, 1814. This event occurred during the tumultuous War of 1812, marked by the burning and pillaging of Washington. Interestingly, Cockburn had taken shelter from a violent thunderstorm; some sources even claim it was a derecho that had engulfed Washington that afternoon.
While conversing with the homeowner, an unexpected turn of events unfolded. The house’s main door swung open abruptly, and four drenched individuals entered, bearing a white flag.
Among these individuals was Dr. Elisha Cullen Dick (1762-1825), who had tended to Washington in his final moments. Initially aligned with the Presbyterian faith, Dick became a Quaker in 1812. His final resting place lies in Alexandria’s Quaker Burial Ground, which now houses the Kate Barrett Library (you can read more about the Quaker Burial Ground and Dr. Dick at this blog [Discover the History of the Quaker Burial Ground in Alexandria, Va: from Sacred Space to Modern Landmark]).
Their presence was to ascertain the terms under which Alexandria could surrender. The Admiral, however, hesitated to provide a definitive response and instead directed the delegation to surrender to Commodore James Gordon’s squadron, which was en route up the Potomac and headed toward Alexandria. Ultimately, the town yielded to the Potomac Squadron on August 28, 1814, taking this action before any engagement with American militia forces. To read more about the Potomac Squadron and the surrender of Alexandria, read the blog [Battle of the White House].

Buried under the North Aisle of the Meeting House
Following Muir’s passing, his final resting place lies beneath the surface, thirteen feet beneath the northern expanse of the Meeting House sanctuary. This location is near where the initial pulpit once stood. A commemorative plaque adorning the north wall is a lasting tribute to Dr. Muir. This plaque was carefully repositioned to this spot during the reconstruction in 1837, a deliberate choice to bring it into proximity with the burial site of Reverend Muir underneath the original pulpit along the northern boundary.
Lewis Nicola (1717 – August 9, 1807): Author of the Infamous Newburgh Letter and Unsung Hero of the American Revolution
Lewis Nicola’s journey from Dublin to the heart of the American Revolution weaves a tale of military prowess, controversial ideas, and serene final years. Born in 1717 into a Huguenot family with deep military roots, Nicola’s life was destined for the army. He climbed the ranks from ensign to major, serving as commander of Fort Charles in Ireland before a bold move to America in 1766.
In Philadelphia, Nicola’s path took a turn towards civil engineering, but the American Revolution soon called him back to military service. He played pivotal roles, from managing barracks in Philadelphia to proposing innovative military strategies. However, it was his controversial correspondence with George Washington in 1782 that marked a defining moment. Nicola’s suggestion of a monarchial government for the struggling nation, with Washington at its helm, was met with a stern rebuke, etching his name in history through the infamous Newburgh Letter.
One of Nicola’s most enduring contributions was his establishment of the Invalid Corps during the Revolutionary War in 1777. This innovative unit was designed to utilize soldiers who were no longer fit for full combat duty but could still contribute to the war effort in supportive roles. Nicola’s Invalid Corps set a precedent that would be revived and expanded during the Civil War with the creation of the Invalid Corps in 1863, later renamed the Veteran Reserve Corps. This concept of making use of partially disabled soldiers for essential non-combat tasks proved invaluable in both conflicts, showcasing Nicola’s forward-thinking approach to military organization and resource management.
To learn more about how Nicola’s innovation influenced later military practices and to read about Nehemiah Metlock, a soldier who served in the Civil War-era Veteran Reserve Corps, click [here].
After the war, Nicola’s contributions extended beyond the battlefield, playing a role in public service planning. His final years were spent in Alexandria, Virginia, where he passed away in 1807. Buried in the Old Presbyterian Meeting House Burial Ground, Nicola’s story is one of military legacy, bold proposals, and a peaceful end, leaving an indelible mark on American history.
Sadly, the exact location of Nicola’s grave has been lost over time, leaving a gap in the tangible history of this notable figure.
Read more at this fascinating blog: The Soldier Who Proposed a Crown: The Life and Legacy of Lewis Nicola
Thomas Porter (1756 – May 1, 1800): From Boston Tea Party to Alexandria Leader
Thomas Porter, born in 1756, was a significant figure in Alexandria’s history. At 17, he was among the 116 participants in the Boston Tea Party at Griffin’s Wharf on December 16, 1773 (Boston Tea Party Ships & Museum, n.d.). Porter was an early member and treasurer of the Relief Fire Company and signed the petition to establish the Bank of Alexandria on October 9, 1792. He also signed a 1792 petition to the Governor advocating for the freedom of a slave named Will, who had been sentenced to death.
Porter owned property on Cameron Street, where the town’s most popular theater was built in 1797. He was a merchant and a member of the Common Council. His records as a slaveowner show that he owned one slave in 1787 and two slaves from 1788 to 1790. He resided at 412 South Fairfax Street.
In 1794, Porter became a charter member of the Alexandria Library Company. He was also a member of the Society for the Promotion of Useful Knowledge in 1790 and one of the thirteen original directors of the Marine Insurance Company of Alexandria. In 1800, Porter was a founding member of the Washington Society of Alexandria.
Porter married Sarah “Sally” Ramsay on August 20, 1794. Sally was the daughter of William Ramsay and was known to some, including George Washington, as Sally Ramsay. She was a boardinghouse keeper on Prince Street and owned one slave in 1787. The couple was married by Reverend Muir. George Washington attended their wedding on March 14, 1788. They had at least one child, James Porter, born in 1798. In 1810, Sarah owned five slaves and continued to run her boardinghouse. She remained a member of the Meeting House until 1817 before moving to Washington in September 1819. Sarah died on October 6, 1832, and is buried in Congressional Cemetery in the District of Columbia.
Their son, James Porter, died in 1800 at the age of 2 from hives and is buried in the Meeting House burial ground, plot unknown.
A dedicated Mason, Porter was a member of Masonic Lodge 22 and was buried with Masonic honors at the Meeting House Burial Ground, where Lodges No. 22 and No. 47, along with Brooke Lodge, united for the ceremony. He passed away from fever on May 1, 1800, at 44, and was commemorated by many citizens, including the Masonic Lodge and the Washington Society, who attended his funeral to pay their respects. His name is listed on the burial ground’s Revolutionary War Patriot plaque. However, his final resting place is not known.
Ann Nancy Russell December 17, 1772 – March 26, 1807)
Ann died of consumption (tuberculosis).
| In Memory of Mrs. ANN RUSSELL born 17th December 1772 died 26th March 1807 Erected by her surviving Husband To re__ of his affection & rest[ect] In her ___ was the law of ___ She looked well to the ways of her household, and ate now the bread of ____ Her children arise up and called her blefsed: her husband also, and he praises her Favor is deceitful and beauty is vain bu at women that dearth the Lord she shall be praised |
Mary Smith (Died February 1, 1797)
| Erected to the memory of MARY the wife of HUGH SMITH who departed this life Feb. 1st 1797 in the 29th year of her age and to MARY ANN their only child who died Octr 2d 1798 aged 21 months. Near to this place are also interred the remains of THOMAS WILLIAM the eldest son of HUGH & ELIZABETH SMITH who died Octr 21, 1801 aged 3 years and of Mary their daughter who died Aug 11th 1807 aged 1 year.” |
Hugh Smith (1769-1856) was a prominent figure in Alexandria’s history, known for his wealth, enterprise, and contributions to the community. Born in Knutsford, England, he immigrated to the United States, bringing a rich heritage from the Church of England. Despite his reservations about Presbyterian doctrines, he attended the congregation of Rev. James Muir, D.D., alongside his wife.
Smith’s influence in Alexandria was evident in various capacities. He was a Trustee and member of the Church Committee by January 1816. In 1813, he signed the deed purchasing land for the Presbyterian Cemetery. His generosity was further showcased when he donated a significant sum of $200 in 1819 for an organ.
His civic duties were manifold. During the War of 1812, he served as the First Sergeant in the First Regiment of the DC Militia and was a member of the City Council. Smith was also an official of the Washington Society of Alexandria and later became the Director of the Alexandria Canal and the Potomac Bank. His leadership skills were further highlighted when he took on the role of President for the Fire Insurance Company of Alexandria.
In business, Smith was a prosperous merchant specializing in imported glass and china. His store was strategically located at the corner of King and Water streets or possibly Ramsay’s Wharf. He was also the Commissioner of the Domestic Manufacturing Company, which later became the Mount Vernon Manufacturing Co. Furthermore, from 1825 to 1841, he operated the Wilkes Street Pottery, and his company, Hugh Smith & Co., was renowned for earthenware, glass, and china merchandise.
Smith’s wealth was evident not only in his business ventures but also in his assets. He owned 81 acres atop Stump Hill along the road to Leesburg, a part of which later became the Ivy Hill Cemetery. Records from the 1810 census indicate that he owned five slaves. However, in a commendable act, Hugh Smith, along with Hugh C. Smith, manumitted over twenty-eight slaves of African descent.
In recognition of his contributions and stature, he was made a member of the Society of the Cincinnati. Hugh Smith’s legacy is a testament to his entrepreneurial spirit, civic duty, and commitment to the betterment of Alexandria.
Smith and his second wife, Elizabeth Watson Smith, are buried in the Presbyterian Cemetery on Hamilton Avenue in section 41:30.
Rev. William Thom (1750-1773)
Rev. William Thom (burial location not known – but maybe B7) was the inaugural minister for Alexandria’s Presbyterians, having come from Philadelphia in 1772. He succumbed to yellow fever in August 1773. His mother, Mary Thom, who had traveled with him to Alexandria, also passed away in the same outbreak.
Margaret “Peggy” Vowell (1773-1806)
Burial site 33. A native of Alexandria and the daughter of Captain John Harper. In 1795, she wed John Cripps Vowell. She passed away from consumption and rests under a tablet stone behind the sanctuary, alongside four of her children who tragically died as infants. John Cripps Vowell is interred in the Presbyterian Cemetery.
| A monument raised by the afflicted Husband of the departed worth of Mrs. MARGARET VOWELL, daughter of JOHN HARPER, ESQ. Born August 20th A.D. 1775 DIED July 25th A.D. 1806 The same lot contains the dust of four Children who died in infancy the eldest in her fifth year. Her characteristic was an ardent mind which, having received early impressions of the religion of Jesus was zealously bent, by example and precept to promote this glorious interest. Here lies the heir of heavenly bliss, Whose soul was fill’d with conscious peace; A steady faith subdued her fear, She saw the happy Canann near; Her mind was tranquil and serene; No terrors in her look were seen; Her Saviour’s smile dispell’d the gloom And smooth’d her passage to the tomb. Let Faith, like her’s in joys to come, Direct my walk, though dark as night; Till I arrive at heaven, my home Faith be my guide and faith my light. |
Mary Vowell (1772-1805)
She hailed from Philadelphia and was the daughter of Captain John Harper. As Peggy’s elder sister, she wed Thomas Vowell in 1794, the brother of John Cripps Vowell. Mary succumbed to consumption at 33, a year before her younger sister’s passing. She is laid to rest in a box tomb close to Peggy, accompanied by the remains of her four infant children who sadly passed before her. Thomas Vowell’s eternal rest is within the Presbyterian Cemetery, within the Wilkes Street Cemetery Complex.
| Under this stone are deposited the rains of Mrs. MARY VOWELL, late wife of THOMAS VOWELL, junior, & daughter of the late Captain JOHN HARPER who was born 28 of February 1772 and died 19 August 1805 aged 33 years, 5 months and 19 days In the same plot are deposited four infant children This Monument is erected by the surviving husband as a tribute of love and afflicting remembrance Her, in the just hope above the stars to rise, The mortal part of MARY VOWELL lies; In whom those beauties of a spotless mind, Faith and good works were happily combin’d. Unblam’d, unequaled in each sphere of life, The tenderest daughter, sister, parent, wife. Sure in the silent sabbath of the grave, She tasted that tranquil peace she always gave. They death, and such, oh reader, wish thine own, Was free from terrots and without groan. Thy spirit to himself th’ Almight drew Mild as the sun exhales th’ ascending dew. |
Elizabeth White (c.1772-1795)
| In Memory of ELIZABETH ANNE WHITE, the wife of JOHN WHITE, of Alexandria, who died the 23d of July, 1795 in the 23d year of her age |
James Wilson (1766/67-1805) – A Merchant, Ship Owner, and Civic Leader
James Wilson, a prominent figure in the late 18th century Alexandria, was born in Glasgow and embarked on a life that would leave a lasting mark on the city. In 1777, at the tender age of 10 or 11, he made the transatlantic journey to Alexandria, Virginia, a place that would become his home and the center of his endeavors.
James was not alone in his journey; his brother, William Wilson, shared his adventures and aspirations. Together, they became integral members of the community.
One notable event in James Wilson’s life was his involvement in the estate of Reverend William Thom, a respected clergyman in the area. James posted a bond for Reverend Thom’s estate, demonstrating his sense of responsibility and commitment to his community.
In the annals of history, James Wilson’s name can be found in James Muir’s 1805 Diary, a testament to his enduring presence in the records of his time. Furthermore, he served as an executor alongside James Hendricks for Reverend Thom’s will in 1773, a position that reflected his trustworthiness and dedication.
James Wilson was a landowner and held the property known as Bush Hill, which he shared with Josiah Watson. This property was significant in the local landscape.

His commitment to civic life was evident in his signing the congregation’s incorporation papers in 1786. He also played a role in the advertisement and lottery for the church steeple project in 1791, showing his support for community initiatives.
Beyond his civic contributions, James Wilson was a prosperous merchant and ship owner. He resided at 124 South Fairfax Street, living a life that blended business and family. His residence featured two entrance doors, one leading to his shop, where he offered an array of goods, including fine woolens, women’s shawls, cashmere, Gloucester cheese, and more. The other entrance led to the family residence on the upper floors.
James Wilson’s business ventures extended to a warehouse on King Street, demonstrating his active role in trade and commerce in Alexandria.
His involvement extended to establishing the Bank of Alexandria, where he signed a petition on October 9, 1792, contributing to the region’s financial development. Additionally, James Wilson held land in Fairfax County, adding to his diverse holdings.
James Wilson was a man of business and civic engagement and a member of the Society of the Cincinnati, a testament to his involvement in esteemed organizations of his time.
As a man of his era, James Wilson also owned slaves, with two in his possession in 1790 and four by 1800.
Tragically, James Wilson’s life was cut short at 38. Nevertheless, his legacy lives on in the historical records of Alexandria, where he left an indelible mark as a merchant, ship owner, civic leader, and participant in the vibrant community life of his time.
The location of his burial site remains unknown.
John Wise (DOB- Unknown – July 3, 1790)
| Here lie the Remains of JOHN WISE Son of John & Elizabeth Wise of Alexandria; who, in the 13th year of his age, was Fuddenly Fummoned, from this world, to an infinitely better on, on the 3rd day of July A. D. 1790. Weep not, found Parents, all you grifts difmifs: I live, inmormortal, in the Realms of bills. |
Conclusion
The 18th-century burial ground of the Old Presbyterian Meeting House stands as a testament to the lives, faith, and contributions of Alexandria’s early Presbyterian community. Through the preservation and study of this historic site, we can gain valuable insights into the challenges, triumphs, and enduring legacy of those who came before us, ensuring that their stories continue to inspire and inform future generations.
Learn more about the individuals buried here through our historical timeline.
Sources and Further Reading
Alexandria Association. (1956). Our town 1749-1865 at Gadsby’s Tavern Alexandria, Virginia. The Dietz Printing Company.
Boston Tea Party Ships & Museum. (n.d.). Participants in the Boston Tea Party. Retrieved from http://www.boston-tea-party.org/participants/participants.html
Boundary Stones of the District of Columbia. (n.d.). Additional information. Retrieved May 2022, from https://boundarystones.org
Carlyle House. (n.d.). John Carlyle. Retrieved October 2022, from https://www.novaparks.com/parks/carlyle-house-historic-park/history
Dahmann, D. C. (2022). The roster of historic congregational members of the Old Presbyterian Meeting House.Unpublished manuscript.
George Washington’s Mount Vernon. (n.d.). Battle of the Monongahela. Retrieved September 2022, from https://www.mountvernon.org/library/digitalhistory/digital-encyclopedia/article/battle-of-the-monongahela/
Howard, M. R. (2023). The fevered fight: Medical history of the American Revolution, 1775-1783. Pen and Sword Books.
Lord, W. (1972). The dawn’s early light. W. W. Norton & Company, Inc.
Miller, T. M. (1991). Artisans and merchants of Alexandria, Virginia, 1780-1820: Volume 1. Heritage Books, Inc.
Moore, G. M. (1949). Seaport in Virginia: George Washington’s Alexandria. Garrett and Massie, Incorporated.
National Park Service. (1976, April 30). Register of Historic Places Inventory Form: LaGrange Plantation, Port Tobacco, Maryland. Retrieved from https://apps.mht.maryland.gov/Medusa/PDF/NR_PDFs/NR-400.pdf
Old Presbyterian Meeting House. (n.d.). Old Presbyterian Meeting House’s visitor’s guide to Alexandria’s historic Old Presbyterian Meeting House. Trifold pamphlet.
Old Presbyterian Meeting House Churchyard Burial Ground. (n.d.). Trifold pamphlet.
The Presbyterian Meeting House. (n.d.). Church history. Retrieved May 2022, from https://opmh.org/about/history/
Pippenger, W. E. (1992). Tombstone inscriptions of Alexandria, Virginia: Volume 1. Family Line Publications.
Powell, M. G. (2000). The history of Old Alexandria, VA, from July 13, 1749 – May 24, 1861. Willow Bend Books.
Wineberger, J. A. (1857). The tomb of Washington at Mount Vernon. T. McGill.
- In colonial Virginia, the term Meeting House was commonly used to describe places of worship for non-Anglican congregations, including Methodists, Presbyterians, and Baptists. These dissenting religious groups were officially tolerated after 1776 but still faced legal restrictions under the Anglican establishment. For example, meeting houses were often required to keep their windows and doors closed during services—ostensibly to contain “blasphemous” teachings that challenged the Church of England’s authority. ↩︎







